
- エアコンサイズ選定の悩み
- とりあえず一回り大きいモデルでいいかな?
- 店員さんのオススメでいいのかな?
- せっかくの高気密高断熱住宅の性能を無駄にしていませんか?
Aircon MediaではASHRAE(米国暖房冷凍空調学会)のTAC温度法による設計外気条件を用いた一般的なエアコン負荷計算に基き「空調負荷計算書」を作成しあなたの悩みを一緒に解決する有償サービスです。
空調負荷計算書作成サービス概要
メリット
- 適切なエアコンサイズが分かる
- 負荷の内訳が分かるので節電しやすい
- 建物の断熱性能を最大限活用できる
サービス内容

冷房・暖房負荷計算書サンプル
お客様の建物の間取りや仕様を頂きました図面から分析しそれぞれのお部屋に必要な冷暖房能力を算出し冷房・暖房負荷計算書を作成、お部屋ごとの最適なエアコンサイズをアドバイスを添えてPDF形式でお届けします。
Aircon Mediaでは、次の情報をお客様からお聞きし、実際の生活スタイルや使い勝手がよく、お客様の建物の断熱気密性能を存分に引き出せるサイズ選定が可能になります。
- 場所(地域ごとの気候条件の把握)
- お部屋の温度・湿度はどの程度にしたいですか?
- 発熱器具を使用しますか?(=お部屋の用途はなんですか?)
- 通常在室する人数は何人ですか?
またご希望によりお好きなメーカーのエアコンの中から最適モデルの提案も可能です。
このサービスはAircon Mediaでのエアコン工事施工ではない場合でもご利用可能です。
料金
基本料金(一棟・3LDKまで) 16,500円(税込)
4LDK以上の建物の場合は1室(区画)追加毎に: 3,300円/室(税込)
お支払い方法: クレジットカード(1回払い)
お支払い確認後レポートの作成並びに納品とさせて頂きます。
ご注意: 納品後のキャンセルは申し受けられません。 予めご了承ください。
購入・申込み
また、次の計算・分析作業に必要な図面などをご用意いただき申し込みフォームからアップロードしていただきます。
負荷計算に際し必要となる図面
- フロアの平面図
- 建物配置図(方角がわかるもの)
- 建物の立面図
- 仕様書(建物の断熱材性能や、窓の性能を含む)

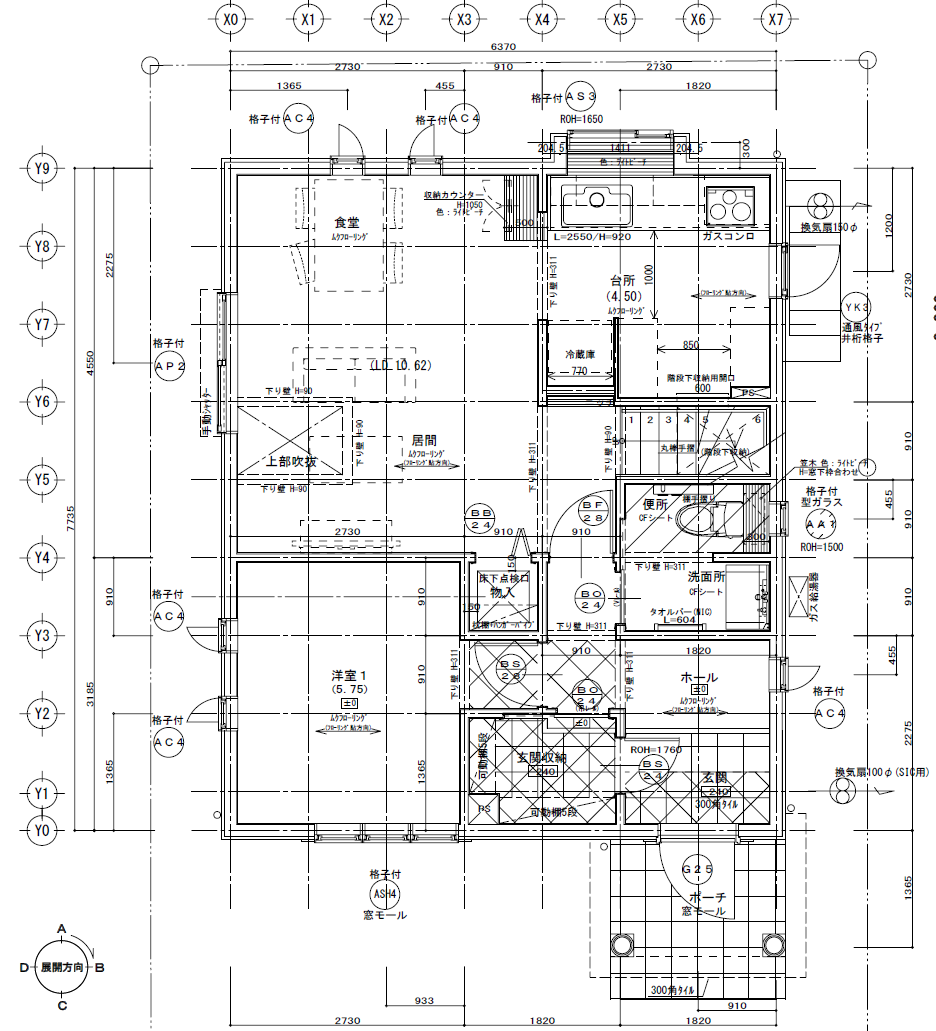
フロアの平面図

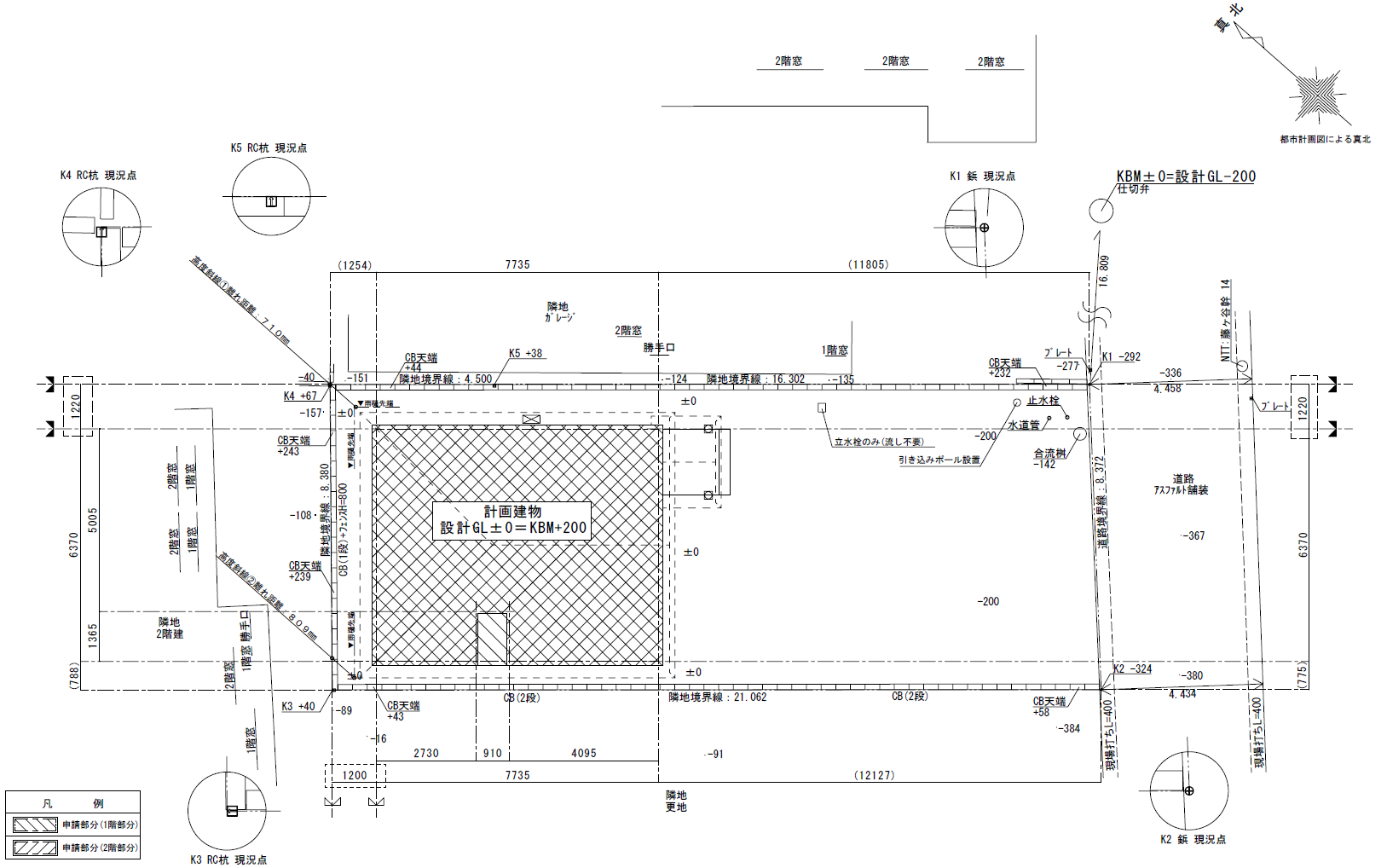
建物の配置図

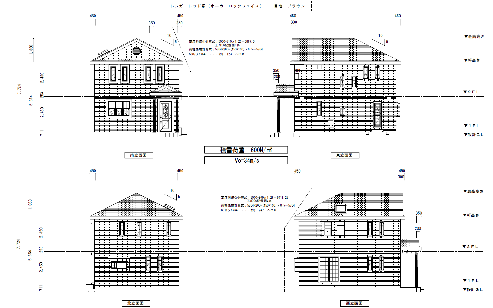
建物の立面図

仕様書
平面図内に仕様書の内容が記載されている場合は、別途仕様書がなくても作成できる場合があります。
不足する情報がある場合は、その旨明記の上、一般的な係数を代入して行います。
建物が現在、建設中の場合は手遅れになる場合がありますので、
着工前にご相談ください。
Aircon Media「冷房・暖房負荷計算書」の解説
Aircon Mediaでは、
- 場所はどちらですか?
- お部屋の温度・湿度はどの程度にしたいですか?
- 発熱器具を使用しますか?(=お部屋の用途はなんですか?)
- 通常在室する人数は何人ですか?
これらの項目をお聞きし、それ以外はご提供いただいた図面から読み取って負荷計算書を作成します。ご提出いただく図面は、次に示します。
FAQ
Q1. 負荷計算書の作成だけをお願いすることは可能ですか。
可能です。 計算だけでもお気軽にご相談ください。
Q2. 負荷計算書の計算結果をもとに、Aircon Mediaでエアコン工事をお願いしようと思っています。計算結果よりも大きめ(小さめ)のエアコンを購入することは可能ですか。
もちろん可能です。
Q3. ガレージにエアコンをつけたいのですが、このような特別な部屋も対応できますか。
可能です。まずはお気軽にご相談ください。
空調負荷計算書作成サービス申込みはこちらから



